Teknik Resim ve Üretimdeki Önemi
Y.Doç. Dr. Tuncer DİLİK
İ.Ü. Orman Fakültesi
Orman Endüstri Mühendisliği Bölümü
tuncerd@istanbul.edu.tr
Özet
Teknik elemanların mesleklerini yapabilmeleri için anlatmak istedikleri teknik hususların biçim ve ölçülerini belirtmede kullandıkları çizgisel anlatım lisanıdır şeklinde tanımlanan teknik resim çizimi ve kavramının tarihi milattan önce 30 yılına kadar geriye gitmektedir.
Ancak, bugün kullandığımız izdüşümü kural ve metotlarının temeli olan, bir cismi birbirine dik düzlemler arasında düşünerek her üç boyutunun, bu düzlemler üzerinde izdüşümü olarak görülmesinin sağlandığı teknik resim çizimleri ilk olarak Gaspard Monge tarafından 1795’te kullanılmıştır.
Özellikle teknolojideki gelişmelerin yakından takip edilebilmesi için gerekli iletişim ve anlaşma vasıtalarını öğrenmek ve kullanmak zorunda kaldığımız günümüzde, anlaşma araçlarının en önemlilerinden birisi teknik resimdir. Zira, teknik resim, dil ve ülke farkı gözetmeksizin teknikle uğraşan herkesin birbirleriyle anlaşabilmesi amacıyla kullanılan uluslararası ortak bir grafik lisan olarak; özellikle imalat sanayindeki (üretimdeki) kullanımı, çeşitli konularda işlerin hızlı yapılabilmesi, herkesin ayni şeyi kullanabilmesi, düzenli üretim yapılabilmesi için gerekli standardizasyon şartının sağlanması açısından önemlidir.
Üretim, bilindiği gibi genellikle atölye adı verilen iş yerlerinde çalışan işçi ve ustalarca; mühendis, tasarımcı (konstrüktör) veya teknik ressamlar tarafından bürolarda çizilen teknik resimlere göre yapılmaktadır. Üretimi yapılacak parçalar, özelliklerine göre genellikle model, döküm, tesviye, montaj vb. atölyelerinde birçok kişinin elinden geçer. Dolayısıyla, bu kişilerin o parça hakkında bilgi sahibi olması, çizilmiş resmi anlaması gerekmektedir. Bu işlemlerin yapılması sırasında, iş bölümünde görevli kişiler değişik yerlerde bulunabileceğinden parça veya makine şeklinin ve diğer bilgilerin söz veya yazıyla anlatılması mümkün olmaz. Bu sebeple teknik resim, tanımladığı parçayı eksiksiz ifade etmelidir.
Bu bakımdan, her teknik elemanın veya üretimde görev alacak her kişinin teknik resim kural ve metotlarını öğrenmiş olması gereklidir. Ayrıca, teknik resmin karşılıklı anlaşmayı ve düzenli üretimi sağlaması ile çeşitli hesaplamaları kolaylaştırıcı bir unsur olduğu sonucu açıkça ortaya çıkmaktadır.
1. Giriş
Bu makalede, teknik resmin diğer sanat resimlerinden olan farkı ve tarihi gelişimi incelenerek, amacı ve üretimdeki önemi açıklanmaya çalışılmıştır. Hemen her alanda ortak hareket etme ve işbirliğinin zorunlu hale geldiği dünyamızda, teknik ve ekonomik gelişmelerin her kademesinde adaptasyona imkan vermek, standartlarda, üretimde ve teknolojide beraberliği sağlamak şarttır. Bu beraberliğin sonuçlarından en iyi şekilde faydalanmak açısından, üretilen mal ve hizmetlerin ortak kurallar ve metotlar kullanılarak hizmete sunulması gerekmektedir. Özellikle teknolojideki gelişmelerin yakından takip edilebilmesi için gerekli iletişim ve anlaşma vasıtalarını öğrenmek ve kullanmak zorundayız. Bu alanda anlaşma araçlarının en önemlilerinden birisi de teknik resimdir. Teknik resim, dil ve ülke farkı gözetmeksizin teknikle uğraşan herkesin birbirleriyle anlaşabilmesi amacıyla kullanılan uluslar arası ortak bir grafik lisandır (Dılık, 2002).
Teknik resmin ilk bakışta makine parçalarının çizimine rehberlik ettiği sanılırsa da, bilakis çok görünüşlü çizim, ölçek, detay ve montaj çizimleriyle bütün meslek dallarındaki ortak kuralları kapsadığından genel bir anlam taşır. Bu bakımdan teknik resim, teknik mesleklerin ve çizimlerin gramerini teşkil eder.
2. Teknik Resim Kavramı ve Tarihi Gelişimi
Genel olarak resim; insanların duygu ve düşüncelerini veya cisimleri şekillendirme sanatı olarak tanımlanabilir. Resim, ya tamamen serbest olarak veya belirli şartlar içinde özel alet ve takımlarla yapılır. Bu nedenle, serbest sanat resimleri ile şartlara bağlı olarak yapılan teknik resim çizimleri arasında büyük farklar vardır. Güzel sanatlar bölümünü oluşturan serbest sanat resimlerinde ressam, zevk ve sanat anlayışını yansıtırken renkleri ve çizgileri perspektif olarak istediği gibi kullanabilir. Cisimler, eğer önceden belirlenmiş kurallar ve metotlar kullanılarak çizilmişse, bu taktirde endüstriyi ilgilendiren bir resim türü (teknik resim) ortaya çıkar ki bu resimde, düşünce ve tasarıların ürünü olan şekiller veya cisimler; görünüş, ölçülendirme, çeşitli semboller vb. diğer bilgilerle desteklenir. Bunların yanında tasarlanan eşyanın üretimi, çalışma prensipleri vb. şartlarda belirlenerek elde edilen bilgilerde bir düzen ortamında sunulmasını gerekli kılmaktadır. Teknik resim çiziminin başlangıcı, tarihin çok eski devirlerine kadar iner. Tarihi gelişim olarak bakacak olursak bu tür resimlerin ilk kullanımının milattan önce 30 yılına kadar geriye gittiği bilinmektedir. Vitruvius adındaki mimar, bu konuda hazırlanmış bir kitabında izdüşüm kurallarından yararlanmıştır. 12. yüzyılda çizilmiş (MS 1160) bir resimde şematik ve perspektif görünüşte olan su çarklı un değirmeni ile 15. yüzyılda (MS 1550) çizilmiş bir çarkın perspektif resmi ilk teknik resim örnekleri olarak verilebilir. Bu resimlerde yetenek gerektiren bir perspektif uygulaması ve çizim şekli görülmektedir (Şekil 1a,1b).(Şen-Özçılıngır,1992).
Bu sebeple, zaman içinde cisimleri daha basit yollarla ifade etme yolları aranmıştır. Bu konuda ancak, 18. yüzyıl sonlarında bir sonuca varılmıştır. Fransız matematikçisi Gaspard Monge 1795 yılında yayınladığı geometri kitabında, bir cismi birbirine dik düzlemler arasında düşünerek her üç boyutunun, bu düzlemler üzerinde iz düşüm olarak görülmesini sağlamıştır. Böylece, bugün kullandığımız izdüşüm kural ve metotlarının temeli atılmıştır. Bu yeni metotların kullanıldığı ilk resimler olarak; Şekil 2a’da gösterilen;1835 yılında Almanya’da çizilmiş olan bir kesme makasının teknik resmi ve Şekil 2b’de 1910 yılında çizilmiş sonsuz 2 vida ve karşılık dişlisinden meydana gelen bir dişli kutusu verilebilir. Şekil 3’de ise 1924’de İstanbul Sanayii Mektebinde çizilmiş olan bir el mengenesi de bu yeni metotla çizilmiş teknik resim örneği olarak gösterilebilir (Şen-Özçılıngır, 1992).
Bugünkü araştırmalar sonucu yaşadıkları zamanlar içersinde, büyük medeniyetler kurmuş olan, Türkler, Romalılar, Yunanlılar gibi milletlerin bıraktıkları eserlerin, itinalı olarak önceden hazırlanmış planlar üzerine yapıldığını göstermektedir. O zamanlar, pek az kimse tarafından bilinen ve uygulanan teknik resim, çoğunlukla askeri tesisler ile ilgili sahalarda kullanıldığından uzun yıllar bir sır olarak saklanmıştır. Ancak, milletlerin süratle endüstrileşmeye gitmesi, teknik resime gereken değeri kazandırmış ve sonuçta, yetiştirici programlar hazırlanarak bütün teknik okulların meslek dallarının öğretimine girmiştir. Çok kısa zamanda sanayi kollarını içine alan teknik resmin uygulama sahası süratle genişlemiş ve nihayet bugün uluslararası bir anlaşma dili haline gelmiştir. Endüstrinin hangi dalında olursa olsun, mühendisinden en küçük işçisine kadar, yapılacak işi bütün özellikleriyle anlatabilecek ve onu olumlu kılabilecek tek anlaşma vasıtası teknik resimdir (Kut, 2000; Köktürk,1996).
3 Yapılan bu açıklamalardan sonra genel bir tanımla teknik resim; teknik elamanların mesleklerini yapabilmeleri için anlatmak istedikleri teknik hususların biçim ve ölçülerini belirtmede kullandıkları çizgisel anlatım lisanıdır şeklinde ifade edilebilir. Daha net ve kesin bir tanımı ise, bir parçanın yapımı için gerekli olan bütün bilgileri eksiksiz olarak taşıyan resimlere teknik resim denir, şeklinde yapılabilir.
3. Teknik Resim ve Üretim
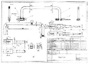
Teknik resmin üretimdeki önemi, Şekil 4’de gösterilen bir kollu el testeresi ve Şekil 5’de verilen bu testerenin imalatına ait teknik resim örneği üzerinde açıklanmıştır. Metal çubukların kesilmesinde kullanılan ve çeşitli parçaların bir araya getirilmesiyle meydana getirilen bu aletle herhangi bir parça kolaylıkla kesilebilmektedir. Böyle bir aletin meydana getirilmesi, metalleri kesme ihtiyacından doğmuş olup, alet elde kullanılacağı için iki elle tutulabilecek sap ve kolu, kesici testere lamasının bağlanabileceği biçimlerde tasarlanıp şekillendirilmiştir. Ancak bu aleti; kim, neye göre, nasıl ve nerede yapacaktır. Öncelikle bu soruların cevaplandırılması gerekir.
Dört kim ve neye göre? Sorusunun çeşitli cevapları ve bunların çözüm yolları tabiki vardır. Ancak bunların en uygun ve rasyonel olanı bulunmalıdır.
1- Böyle bir kesici alete ihtiyaç duyan kişi, düşündüğü şekli elde edinceye kadar uğraşır ve bu işi yapabilecek bir alet bulabilir.
2- İhtiyaç sahibi böyle bir aletin önceden çizilmiş perspektifinden veya çekilmiş fotoğrafından yararlanarak bunu üretebilir.
3- İhtiyaç sahibi bu aletin yapılmış bir modeline göre onun aynını kopya ederek üretebilir.
4- Son olarak gerekli bilgileri taşıyan ve önceden çizilmiş teknik resimlerden yararlanarak bu aletin üretimini yapabilir. Bu yollardan en kolay ve rasyonel olanının hangisinin olduğu testerenin çabuk ve doğru olarak yapılmasını sağlayıp sağlamadığı tespit edilmelidir. Bu tespiti yapabilmek için üretim şartları ve olanaklarının değerlendirilmesi şarttır. Buda nasıl ve nerede sorularının cevabı olarak kabul edilebilir. Bir eşya veya makine parçasının, kendisinden beklenen işi yapabilmesi için; hammadde, şekil, boyut, yüzey durumu, gereç, ısıl işlemler vb. bilgiler bakımından incelenmesi, üretilmesi ve montajının yapılması gerekir. Üretim, bilindiği gibi genellikle atölye adı verilen iş yerlerinde mühendis, teknisyen, usta veya işçiler tarafından çeşitli aletler ve makinalar kullanılarak yapılır. Atölyede çalışan işçi ve ustalar; parçaların imalatını veya makine montajını, ilgili parça veya makinanın, mühendis, tasarımcı (konstrüktör) ve teknik ressamların teknik bürolarda çizdiği resimlere göre yaparlar. Üretimi yapılacak parçalar, özelliklerine göre genellikle model, döküm, tesviye, montaj vb. atölyelerinde birçok kişinin elinden geçer. Dolayısıyla, bu kişilerin o parça hakkında bilgi sahibi olması, çizilmiş resmi anlaması gerekmektedir. Bir eşya veya makinanın, herkesin yararına sunulması için ucuzluk, sağlamlık ve güzel görünüm yönünden araştırılması, deneme üretiminin gerçekleştirilmesi ve imalatı için iş bölümü yapılması gerekir. Mühendis, tasarımcı ve teknik ressamların tasarladıkları makinaların bu şartları ve özellikleri taşıyabilmesi, ancak imalat bilgilerini çok iyi bilen, yetenekli ve tecrübeli kişiler tarafından çizilmesiyle mümkündür. Bu işlemlerin yapılması sırasında, iş bölümünde görevli kişiler değişik yerlerde bulunabileceğinden parça veya makine şeklinin ve diğer bilgilerin söz veya yazıyla anlatılması mümkün olmaz. Bu sebeple teknik resim, tanımladığı parçayı eksiksiz ifade etmelidir. Taşıdığı diğer bilgiler ve açıklamalar çok kısa olarak yazı veya sembollerle belirtilmelidir. Çok karışık ve büyük bir makinenin yapılabilmesi için bütün bilgilerin yazıyla anlatılmasının mümkün olamayacağı bilinmeli ve bu durum herkesçe takdir edilebilmelidir. Ayrıca, çeşitli mesleklerin özelliğine göre değişen anlatım farklılıklarının belirlenmesi gerekir. Makinacılık, elektrikçilik, mimari, inşaat, ağaç işleri vb. bütün meslek dallarında kullanılan resimlerin farklılığı bu düşünceden kaynaklanmaktadır. Ancak, teknik resim sadece makine parçalarının çizimi için kullanılmaz. Perspektifler, görünüşler, ölçekler, montaj çizimleri, krokiler, diyagramlar, çizgiler, yazılar vb. bütün meslek dallarındaki ortak kuralları kapsadığından genel bir anlam taşır. Bu nedenle, teknik resim, teknikle ilgili bütün mesleklerin kullandığı ortak çizim grameri olarak da kabul edilmelidir. Bütün bu görevleri yerine getirebilecek kolay okunabilen, muhafaza edilebilen, çoğaltılabilen, bir yerden bir yere taşınabilen veya gönderilebilen, az yer tutan, ucuza mal olan, elle veya modern çizim araçlarıyla çizilip okunabilen bir anlatım veya anlaşma aracına ihtiyaç duyulmuştur. İşte bu özellikleri taşıyan ortak anlaşma ve anlatım aracı teknik resimdir. Teknik resmin elle veya aletle çizilebilmesi için kurallarının bilinmesi gerekmektedir. Böylece, dünyanın neresinde olursa olsun, lisanlarını bilmediğimiz insanlarla imalatı yapılacak bir parça veya makine hakkında anlaşmamız mümkün olmaktadır. Şekil 4’de verilen kollu el testeresinin teknik resmini incelediğimizde, bunu anlayabilmemiz veya okuyabilmemiz ilk anda mümkün değil gibi gözükebilir. Ancak, bu testerenin yapılabilmesi için bu resimden yararlanılacaktır. Bunun için resimde yer alan çizgiler, rakamlar, semboller ve diğer elemanlar hakkında bilgiye ihtiyacımız vardır. Bu bilgilere sahip kişiler, resmi çizen kişiyi kolaylıkla anlayabilmekte ve tasarlayıp çizdiği testere kolunun imalatını yapabilmektedir. Örneğin bu resim Almanya’da çizilmiş olmasına rağmen, imalatı yapacak kişinin resmi anlamak için Almanca bilmesine gerek olmadığı ortaya çıkmaktadır. Diğer taraftan meydana getirilecek iş sırasına göre, model, döküm, tesviye, montaj ve boya atölyelerinde birçok işçinin elinden geçeceği için, her işçinin o parça hakkında genel bilgiye sahip olduğu kadar teknik resmide çok iyi okuyabilmesi lazımdır. Yapılan bu açıklamalardan sonra, üretimde görev alan bir kişi için, üretilecek parçayı şekil, ebat, doğruluk ve malzeme olarak gösterme metodu olan teknik resmin önemi ve bunun okunup anlaşılabilmesinin gereği açıkça ortaya çıkmaktadır.
4. Sonuç
Sonuç olarak; çeşitli konularda işlerin hızlı yapılabilmesi, herkesin aynı şeyi kullanabilmesi, düzenli üretim yapılabilmesi için gerekli standardizasyon şartının, İmalat sanayinde ancak teknik resimlerle çalışmak ve kullanmakla mümkün olabileceği ortaya çıkmaktadır. Bu bakımdan, her teknik elemanın veya üretimde görev alacak her kişinin teknik resim kural ve metotlarını öğrenmiş olması gereklidir. Ayrıca, teknik resmin karşılıklı anlaşmayı ve düzenli üretimin sağlanması ile hesaplamaları kolaylaştırıcı bir unsur olduğu da unutulmamalıdır.
5846 sayılı yasa gereği lütfen gerektiği gibi kaynak göstermeden alıntı yapmayınız.!
Kaynaklar
1- DILIK, Tuncer (2002): Makine Teknik Resmi Ders Notları (Basılmamıştır),
I.Ü.Orman Fakültesi, Orman Endüstri Mühendisliği Bölümü, 2004, Bahçeköy/İstanbul.
2- KUT, Tahsin (2000): Teknik Resim Ders Notu, (Basılmamıştır) ITÜ. Makine
Fakültesi, 2000, İstanbul
3- ŞEN, Zeki I.- ÖZÇILINGIR Nail (1992): Temel Teknik Resim, Ders Kitapları A.Ş.
Babıali Cad.No:39, Cağaloğlu/İstanbul.
4- KÖKTÜRK, Uğur (1996): Bilgisayarlı Teknik Resim Öğretimi, Cilt 1, Birsen Basın
Yayın Dağıtım Tic. Ve San. Ltd.Şti., Cagaloglu/İstanbul.








